¡Increíble chalet en Sant Andreu de Llavaneres! Referencia : 1082

Resumen

Precio de venta: 875000€
Tipo: Chalet
Provincia: Barcelona
Localidad: Sant Andreu de Llavaneres
Ubicación: Calle de la Indústria, 6

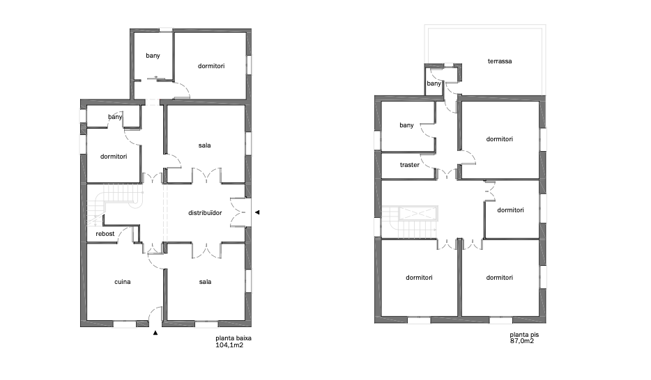
Chalet en Sant Andreu de Llavaneres 191.00m²  

Presentamos esta majestuosa masía catalana, una propiedad única que combina el encanto de la arquitectura tradicional con espacios amplios, luminosos y llenos de carácter. Con techos altos, suelos hidráulicos originales perfectamente conservados, grandes ventanales y detalles arquitectónicos emblemáticos, esta casa ofrece un ambiente cálido, señorial y difícil de replicar. EXTERIORES: -Gran parcela de 1.651 m2 que rodea toda la vivienda, ofreciendo privacidad y naturaleza. -Zona de barbacoa, ideal para disfrutar de encuentros al aire libre. -Trasteros y espacios auxiliares de almacenaje. -Vistas despejadas al mar, que aportan serenidad y belleza al entorno. PLANTA PRINCIPAL: -Gran cocina de estilo rústico con chimenea de fuego a tierra y acceso a una amplia despensa, para actualizar. -Salón principal y varios salones adicionales, ideales para crear zonas diferenciadas. -Comedor independiente, perfecto para reuniones familiares o celebraciones. -Impresionante recibidor con puertas en arco y doble acceso acristalado. -Techos altos con vigas vistas que preservan la esencia de la masía original. -Escalera central de gran presencia, que aporta elegancia a toda la vivienda. -Una habitación mediana con baño completo con ducha. -Una habitación doble con baño completo. -Calefacción por radiadores y aire acondicionado. SEGUNDA PLANTA: -Tres habitaciones dobles, todas con luz natural y vistas. -Habitación mediana adicional. -Vestidor. -Baño completo con bañera. -Aseo de cortesía. -Terraza privada pa

Características

Superfície útil : 191.00 m²
Superfície construida : 340.00 m²

Datos generales

Datos Generales

Año de contrucción : 1938
Estado de conservación : Buena
Ubicación local : A pie de calle

Dormitorios

Número de dormitorios : 6
Dormitorios dobles : 6

Baños / Aseos

Número de baños : 4

Calefacción

Calefacción

Parking

Parking : Si

Cerca de

Colegios

Otros

Jardín privado

Información de la certificación energética

Categoría del consumo energético : E
Categoría de las emisiones : E
Consumo energético (kWh/m2 año) : 368
Emisiones CO2 (kg CO2/m2 año) : 77

Mapa


Solicitar más información de esta propiedad